продажа, Дом, Рязанская область, Глебово, , ул Прудная, д. 5а

  • 8 450 000 Руб
Россия Рязанская область Рязанский Глебово ул Прудная, д. 5а
  • Дом
  • Тип недвижимости
  • Этаж
  • 1
  • Этажность
  • 140
  • кв. м
  • 2025
  • Год постройки
продажа
Россия Рязанская область Рязанский Глебово ул Прудная, д. 5а
  • 8 450 000 Руб

Обзор

ID недвижимости: 219210278
  • Дом
  • Тип недвижимости
  • Этаж
  • 1
  • Этажность
  • 140
  • кв. м
  • 2025
  • Год постройки

Описание

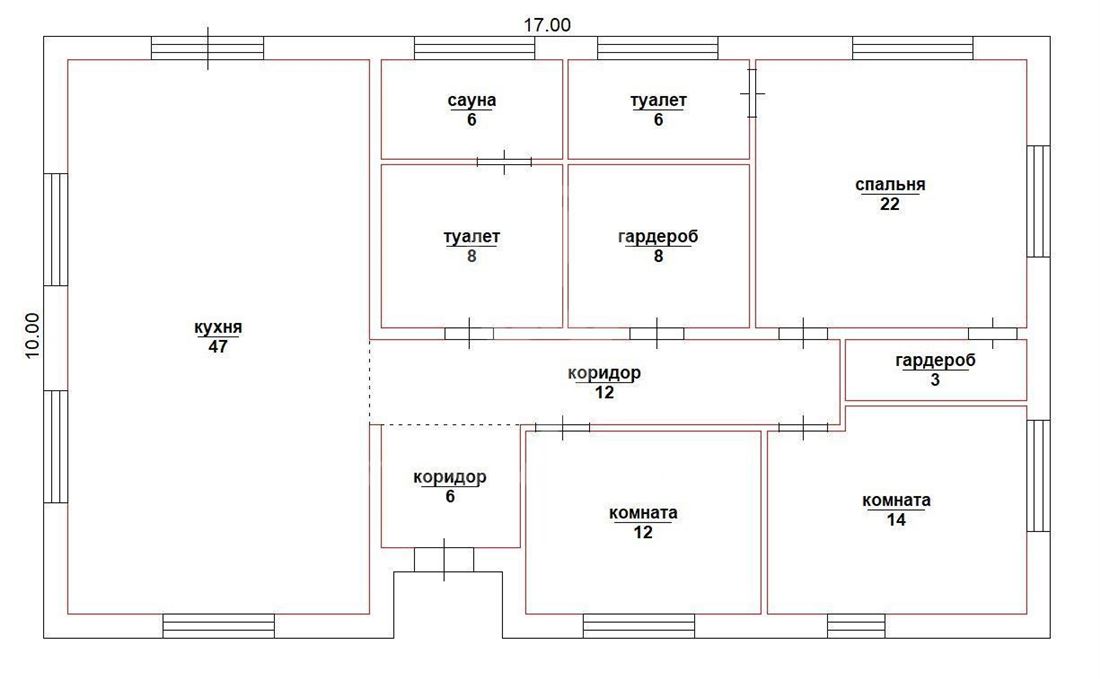
Продается жилой дом площадью 140 кв.м в с. Глебово Рязанского района.
Дом идеально сочетает в себе стиль, комфорт и удобство!
Построен из газосиликатных блоков Раritер 400 мм на монолитном фундаменте (плита). Фасад — штукатурка с декоративными панелями.
В доме 3 комнаты и просторная кухня-гостиная.
Одна из комнат выполнена в формате мастер-спальни с собственным санузлом.
В комнатах и гостиной панорамные окна, создающие ощущение простора. Входная дверь также панорамная.
Проектом дома предусмотрено помещение под парную или сауну, даря изюминку проживания и наслаждение приятными моментами с семьей и друзьями.
Имеется гардеробная комната для хранения вещей и одежды.

Дом расположен на земельном участке 12,6 соток.
Коммуникации (газ, электричество) по границе участка. Вода (центральный водопровод от артезианской скважины) заведена в дом.

Дом находится в коттеджном поселке Караси.
Поселок благоустроенный – закрытая территория, бесконтактный въезд/выезд, пост охраны, круглосуточное видеонаблюдение, дороги с твердым покрытием, собственный пляж с зонами отдыха.

Живописные места и потрясающая природа, богатая ягодами и грибами, чистый воздух, отличная транспортная доступность (15-20 минут до города) и комфортное проживание подарят наслаждение от загородной жизни.
Дом готов к продаже и с ждет своих владельцев!
Показы по предварительной договоренности, звоните!

Описание

Обновление 15 декабря, 2025 в 1:58 дп
  • ID недвижимости: 219210278
  • Цена: 8 450 000 Руб
  • Размер: 140 кв. м
  • Год постройки: 2025
  • Тип недвижимости: Дом
  • Категория: продажа
  • Этажность: 1
  • Тип дома: блочный
  • Адрес ул Прудная, д. 5а
  • Город/Населенный пункт Глебово
  • Область Рязанская область
  • Район Рязанский

Дополнительно

Ипотечный калькулятор

Ежемесячно
  • Основная сумма и проценты
Руб
Руб
%

Сравнить объявления

сравнить
Римма, r.zvezdenkova@lr62.ru
  • Римма, r.zvezdenkova@lr62.ru